Doritos at Super Bowl LX

Super Bowl LX

February 2026 x San Francisco, CA

Doritos’ activation during Super Bowl LX weekend placed the brand at the center of TikTok’s Super Bowl Clubhouse as the title sponsor, a bold, creator-first environment designed to fuel second-screen content around the biggest cultural moment of the year.

The Doritos footprint was intentionally immersive and unmistakably on-brand, saturated in its signature orange & blue high-energy signature colors, visually appealing & optimized for short-form TikTok capture. The space functioned as a curated, invite-only creative hub where creators, athletes, influencers, and brand teams gathered to collaborate, react in real time, and produce culturally relevant content before, during, and after the game. Rather than a traditional one-way brand moment, the activation was built to enable organic storytelling and creator-led engagement within a live social ecosystem.

As Lead Event Producer for Doritos, my responsibilities included:

  • Supporting event conceptualization alongside Doritos’ brand and creative agency partners

  • End-to-end vendor coordination across fabrication, scenic, A/V, lighting, and experiential partners

  • Run of Show development and onsite oversight across multi-day programming

  • Venue management and stakeholder alignment within the larger TikTok Clubhouse footprint

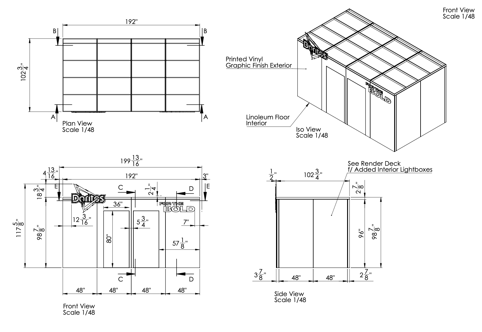
  • Fabrication and scenic vendor management from technical drawings through install

  • Budget oversight and financial reconciliation

The result was a highly curated, culturally relevant brand experience that positioned Doritos at the forefront of Super Bowl conversation, not just on screen, but inside the creator engine driving it.

Renderings to Reality

Previous
Previous

Ulta Beauty Game Face HQ at Super Bowl LX 2026

Next
Next

Puma & KidSuper FIFA Special Collection Launch